
Welcome to The Estates at Beaumont Place, a premier floor plan. Designed to offer spacious and elegant living, The Estates come in two exceptional models: a single-level and a two-story home, each meticulously crafted to meet your lifestyle needs.
Each home in “The Estates” features high-quality finishes, modern amenities, and a thoughtfully designed layout to provide the perfect blend of luxury and comfort. Enjoy the serene, beautifully landscaped surroundings of Beaumont Place, where every detail is designed to enhance your living experience.
One Story
Two Story:
+ 913 SQFT 3 Car Garage in both plans

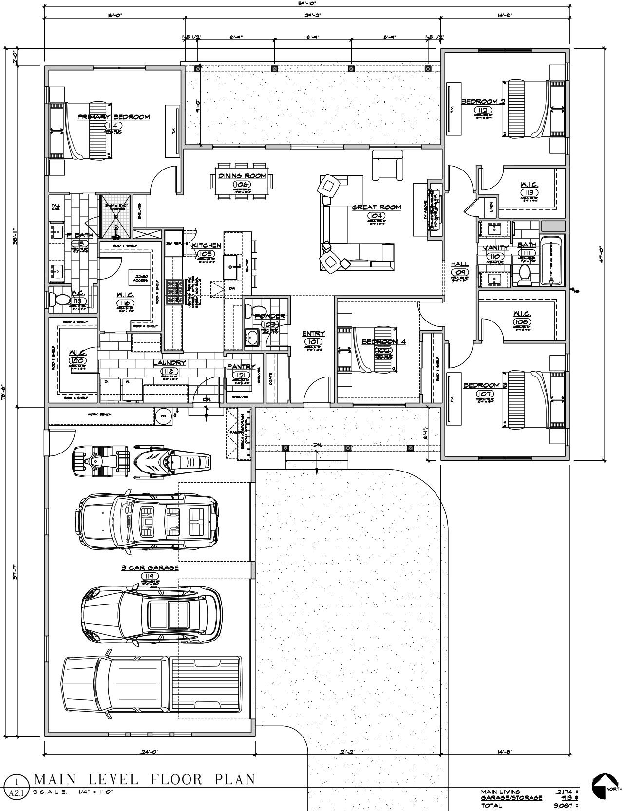
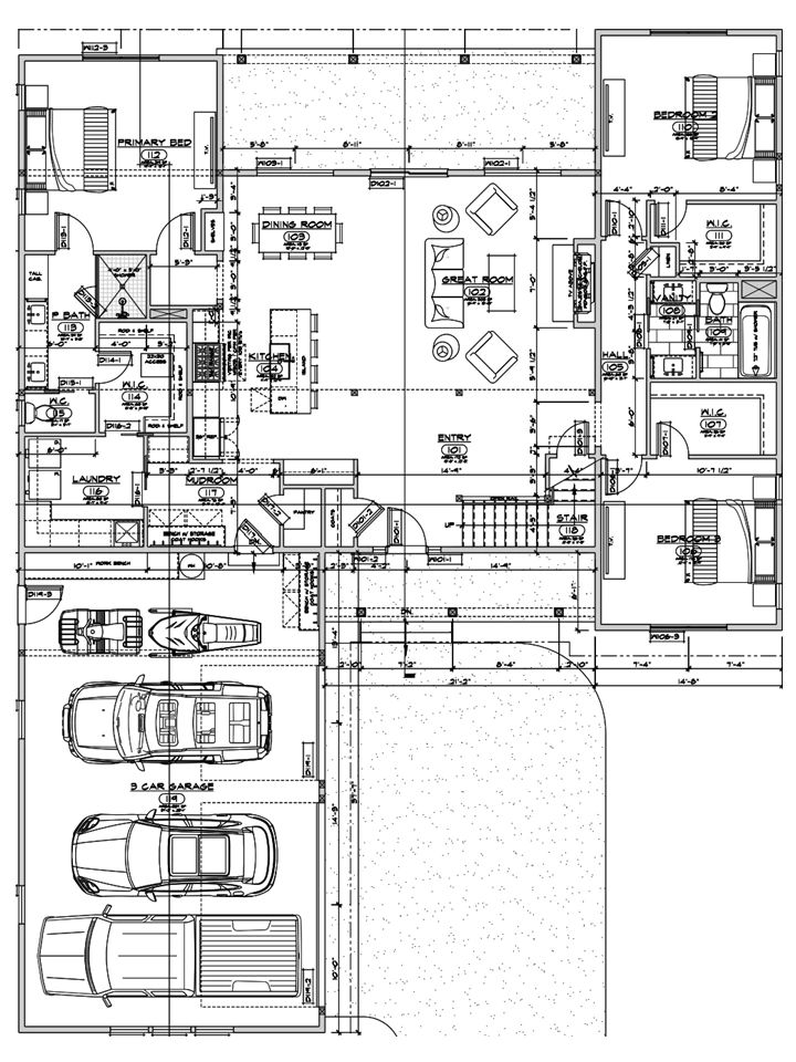
One Story - 1st Floor

Plan A
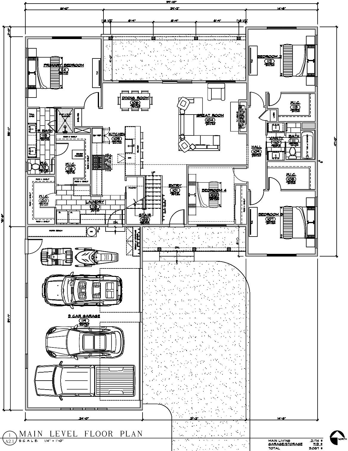
Two Story - 1st Floor

Plan A
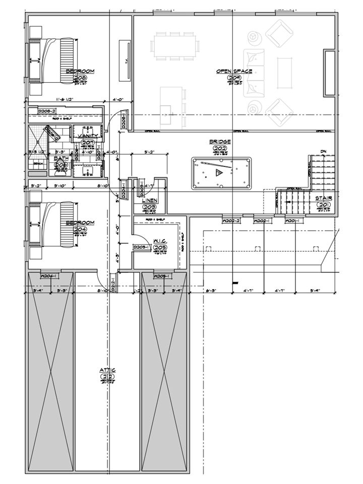
Two Story - 2nd Floor

Plan B
Two Story - 1st Floor

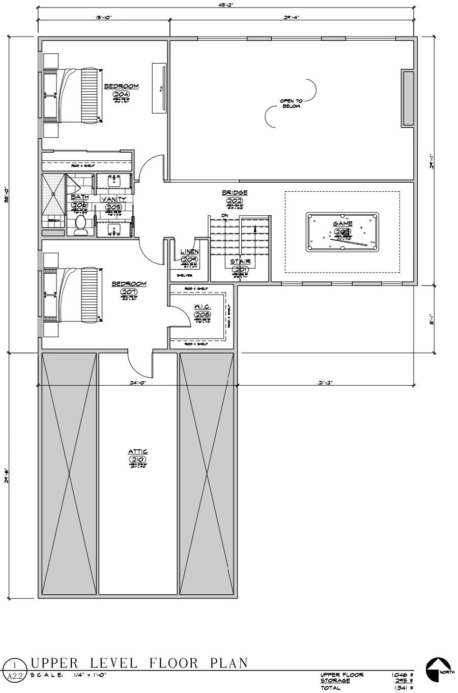
Plan B
Two Story - 2nd Floor
Copyright © 2024 Beaumont Place - All Rights Reserved.
We use cookies to analyze website traffic and optimize your website experience. By accepting our use of cookies, your data will be aggregated with all other user data.